О посёлке
КНОПКА
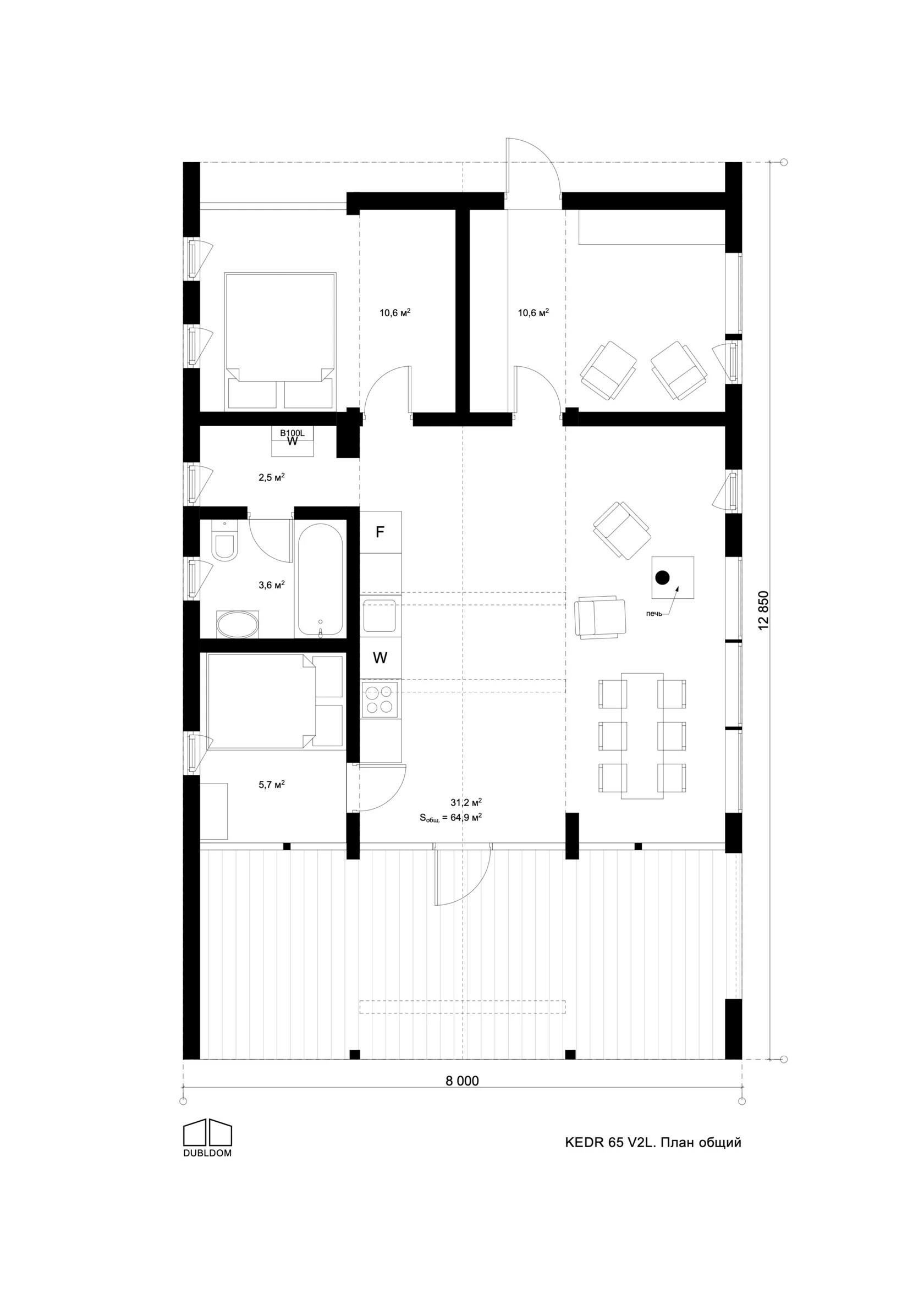
Идеальный размер и планировка для проживания 2-4 человек. В 65 м² разместились: просторная кухня-гостиная; две спальни; прихожая, которую можно использовать как кабинет или третью спальню; бойлерная и санузел с ванной.
KEDR
КНОПКА
ПЛАНИРОВКА
Идеальный размер и планировка для проживания 2-4 человек. В 65 м² разместились: просторная кухня-гостиная; две спальни; прихожая, которую можно использовать как кабинет или третью спальню; бойлерная и санузел с ванной.

Натуральные и экологичные материалы. Снаружи дом отделан деревом и профлистом цвета серый графит. Внутренняя отделка – также массив дерева. Утепление – 200 мм в полу и 150 мм в стенах и крыше.

Модель "KEDR" появилась в 2016 году. За годы существования модели было внесено много изменений и обновлений, часть из них состоялись благодаря обратной связи от наших клиентов. Отработанная технология и эргономика, конструктивные и планировочные решения модели проверены на сотнях домов.
  • 65 м2
    Жилая площадь
  • 102.8 м2
    Площадь застройки
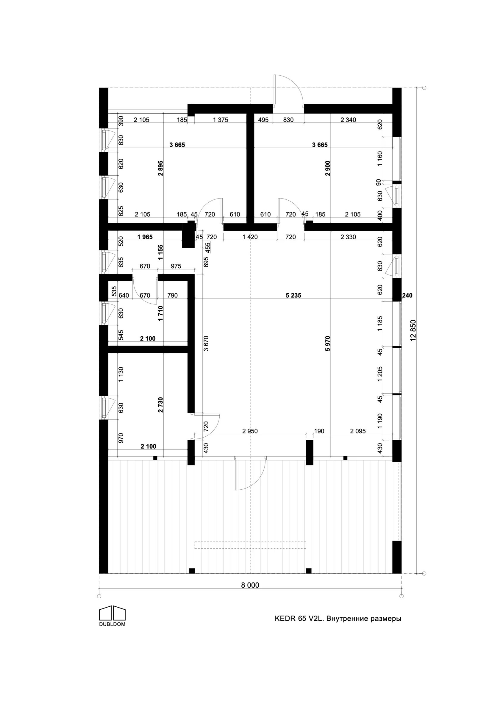
  • 3.60х8.00х12.85 м
    Внешние габаритные размеры (ВхШхД)
  • 1.85-3.07 м (комнаты 1.85-2.54 м)
    Высота потолков: общая
Записаться на экскурсию
Все способы оплаты, включая рассрочку, ипотеку, кредит.