О посёлке
КНОПКА
Модель "KASHTAN" была представлена в апреле 2019 года в рамках презентации новой 3 серии. Именно с этой серии началась эпоха ДубльДомов, выходящих за пределы транспортного габарита.
KASHTAN
КНОПКА
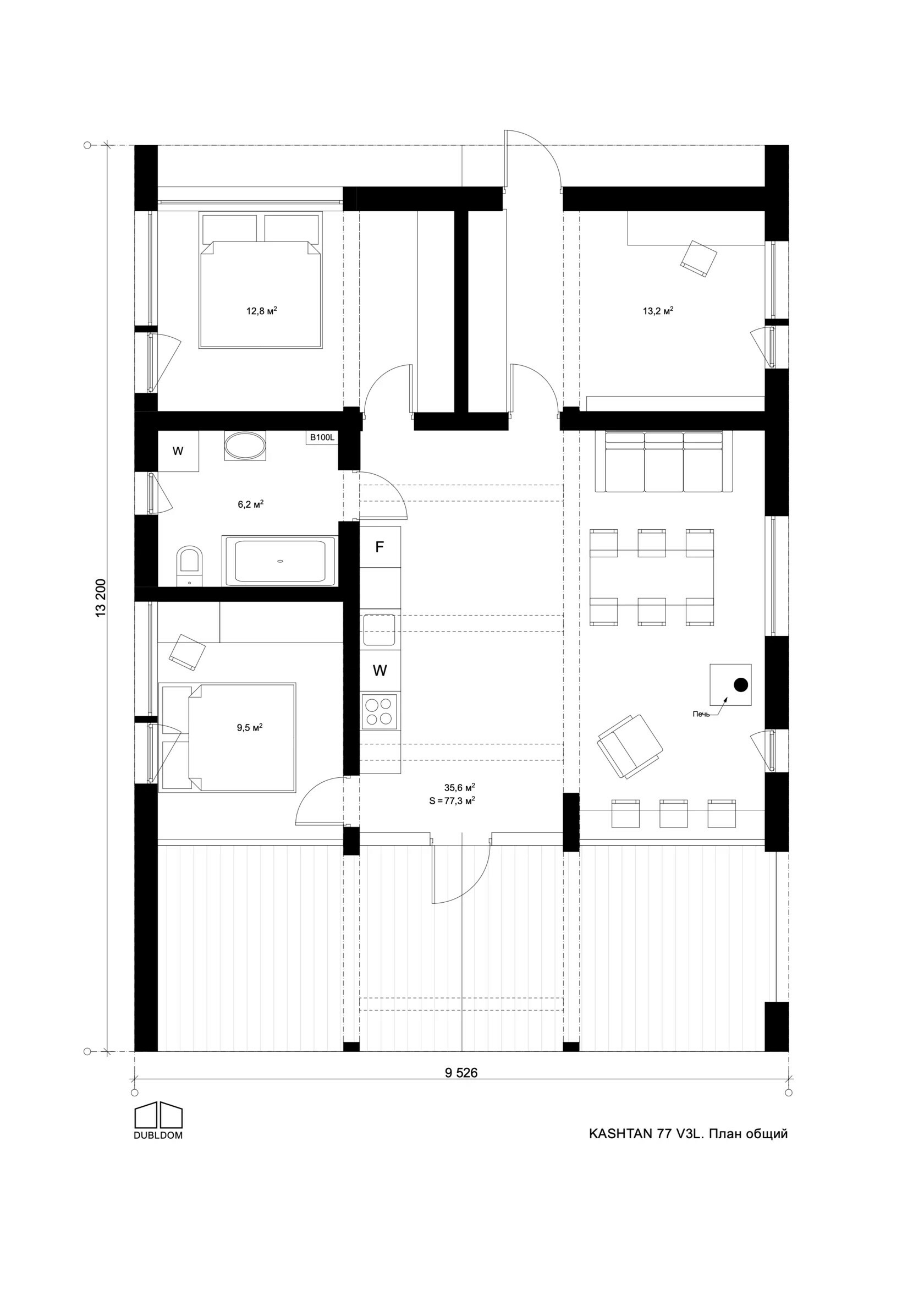
ПЛАНИРОВКА
Модель "KASHTAN" была представлена в апреле 2019 года в рамках презентации новой 3 серии. Именно с этой серии началась эпоха ДубльДомов, выходящих за пределы транспортного габарита. Что это означает? Ширина модулей, из которых состоит дом, стала больше, из-за чего появилось новое ощущение площади, а так же увеличилась высота потолков.

Площадь дома – 77.3 м², а общая площадь застройки – 120.2 м².
В доме большая и светлая кухня-гостиная, две спальни и прихожая, которая может стать третьей спальней или кабинетом. А еще просторный санузел и уютная веранда.

"KASHTAN" адаптирован для маломобильных групп населения: увеличена ширина дверей и разворотная площадка в санузле.
  • 77.3 м²
    Жилая площадь
  • 120.2 м²
    Площадь застройки
  • 3.95х9.52х13.2 м
    Внешние габаритные размеры (ВхШхД)
  • 1.85-3.28 м (комнаты 1.85-2.73 м)
    Высота потолков: общая
Записаться на экскурсию
Все способы оплаты, включая рассрочку, ипотеку, кредит.