О посёлке
КНОПКА
Модель "BAOBAB" – самый большой и вместительный ДубльДом, который мы сейчас производим. Этот дом подойдет для большой семьи.

BAOBAB
КНОПКА
Модель "BAOBAB" – самый большой и вместительный ДубльДом, который мы сейчас производим. Этот дом подойдет для большой семьи.

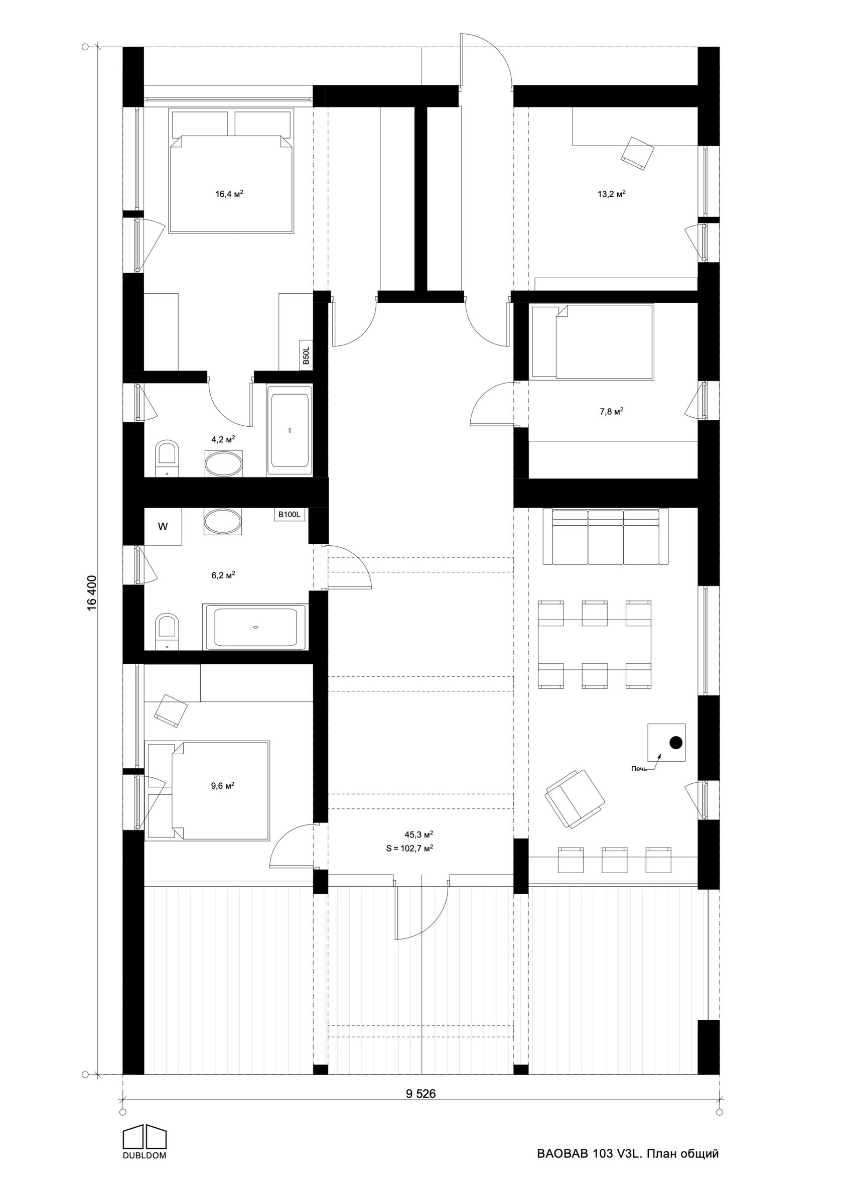
В доме просторная и светлая кухня-гостиная; 3 спальни; прихожая, которая может превратиться в четвертую спальню, кабинет или любую другую функциональную комнату.

А еще в "BAOBAB" 103 сделали 2 санузла, один из которых относится к мастер-спальне. Традиционно в комплекте к дому идет просторная и уютная веранда.
ПЛАНИРОВКА
  • 103 м²
    Жилая площадь
  • 147 м²
    Площадь застройки
  • 3.95х9.52х16.4 м
    Внешние габаритные размеры (ВхШхД)
  • 1.85-3.28 м (комнаты 1.85-2.73 м)
    Высота потолков: общая
Записаться на экскурсию
Все способы оплаты, включая рассрочку, ипотеку, кредит.